Rénovation - Maison Monnaies
Une terrasse sur les toits - 2024
Esquisses et Permis Construire
Anderlecht , sup. 90m2
Projet de rénovation d'intérieur pour privé.
Architecture
J’accompagne vos projets de rénovation intérieure, de la conception au suivi de chantier, qu’il s’agisse d’un appartement ou d’un espace recevant du public.









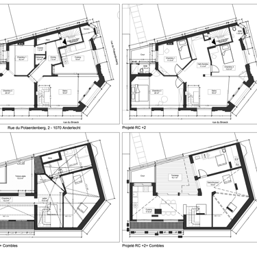
Maison de Maître, Monnais - 2022-23
Mission complète jusqu’au suivi de chantier.
Bruxelles, Sup. 430 m2
Projet de rénovation et permis d’urbanisme pour une maison de maître à Saint-Gilles : changement d’affectation de l’immeuble, passant d’une crèche à un logement, et division en deux appartements. Suivi client pour l’utilisation de matériaux et de mobilier de réemploi, conception de mobilier sur mesure, et accompagnement dans le choix des couleurs pour la peinture et la menuiserie intérieure.
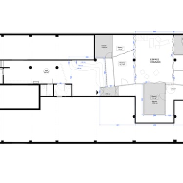
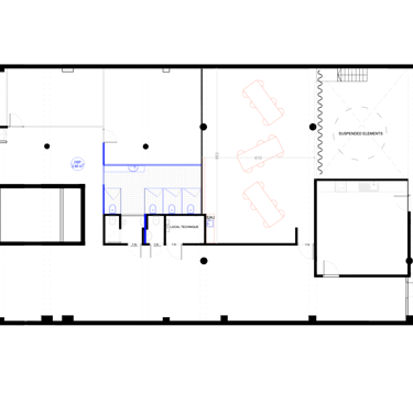
Studio Globo Asbl - 2021-22
Projet jusqu’à la première phase EXE
Bruxelles, Sup. 256 m2
Projet d’aménagement et rénovation d’intérieur d’un espace ludique pour enfants, pour l’association Studio Globo : réalisation des plans, estimatif budgétaire, modélisation 3D et conception de mobilier sur mesure.
















Maison Scheut - 2021-23
Mission complète + mobilier sur mesure
Bruxelles, Sup. 230 m2
Permis de construire, projet de rénovation, mobilier sur mesure (dont cuisine) et suivi de chantier pour la rénovation écologique d’une maison datant de 1900.
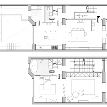
Maison Plisnier - 2020
Mission complète
Bruxelles, Sup. 80 m2
Projet de rénovation "legère" et suivi de chantier .
















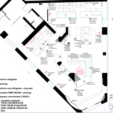
Chocolaterie Vincent Guerlais Nantes
Chef de projet - AUAV architects - Paris / Nantes 2015-2016
Mission complète jusqu’au chantier : conception retail et design du mobilier. Optimisation de l’expérience client, de la circulation, de la mise en valeur des produits et de l’identité de marque
à travers l’aménagement de l’espace, le choix des matériaux, l’éclairage et le mobilier.
